加盟店 中古戸建駒ヶ根市赤穂売家 空家BK登録物件
| 所在地 交通 |
価格 | 間取り 面積 |
土地面積(坪数) 私道負担面積 |
物件種目 築年月 |
|---|---|---|---|---|
| 長野県駒ヶ根市赤穂 JR飯田線伊那福岡駅 徒歩15分 |
398万円
商談中 |
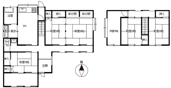
6DK 119.24m² |
331.21m²( 100坪 )
-m² |
中古戸建 1977/0 |



田舎暮らしセールスポイント!
◆中央・南アルプスに囲まれた南信州暮らし
◆空き家バンク登録物件★価格改定★

| 所在地 | 長野県駒ヶ根市赤穂 |
||
|---|---|---|---|
| 交 通 | JR飯田線伊那福岡駅 徒歩15分 | ||
| 価格 | 398万円
商談中 |
種別 | 中古戸建 |
| その他維持費等 | その他一時金 | ||
| 建物面積 | 119.24m² | 築年月 | 1977/0 |
|---|---|---|---|
| 建物構造 | 木造 | 階建 | 地上2階 |
| 間取り | 6DK | ||
| 土地面積 | 331.21m² (公簿) | 土地坪数 | 100坪 |
| 土地権利 | 所有権 | 私道負担面積 | -m² |
| 地目 | 宅地 | 地勢 | 平坦 |
| 都市計画 | 非線引区域 | 用途地域 | 第一種中高層住居専用 |
| 建ぺい率 | 60% | 容積率 | 200% |
| セットバック | 国土法届出 | - | |
| 駐車場 | |||
| 設備・条件 | 名山が望める 里山が望める 買物便利 日当り良好 眺望良好 ガスコンロ 温水洗浄便座 プロパンガス 公営水道 排水下水 駐車場有 | ||
| 引渡/入居時期 | 相談 | 現況 | 空家 |
| 特記事項 | 下水接続必要(宅内引込有) | ||
| 周辺環境 | |||
| 備考 | 現況有姿売買 再値下げ★ |
||
| 物件番号 | 31603-0336 | 取引態様 | 仲介 状態:商談中 |
※物件掲載内容と現況に相違がある場合は現況を優先と致します。
最終更新日:2025-10-31 次回更新予定日:2026-01-31
最終更新日:2025-10-31 次回更新予定日:2026-01-31


| 情報提供元 |
![]() | |||
|---|---|---|---|---|
| 所在地 | 長野県駒ケ根市赤穂10110-8 | |||
| TEL | 電話でのお問い合わせは 0265-83-2321 ※田舎暮らし物件情報『ビギンズ』を見たとお伝え下さい。 | |||
| 定休日 | 毎週土,毎週日,祝祭日 | 営業時間 | 9:00~18:00 | |
| 宅地建物取引業免許:長野県知事(3)第5209号 加盟団体:(一社)長野県宅地建物取引業協会(公社)首都圏不動産公正取引協議会加盟,(公社)全国宅地建物取引業保証協会 | ||||
スポンサーリンク

















