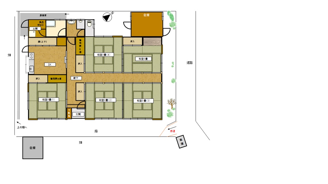
玄関より入って右側の和室エリアは、襖や障子を全て開けると開放的です。
和室の床板には杉板や檜板が使われていて、状態が良いです。
日当たりが良く、晴れた日にはのんびりとしていて心地が良いです。
空き家バンク 中古戸建宇和島市空き家バンク174 のどかな田園風景にある平屋物件
| 所在地 交通 |
価格 | 間取り 面積 |
土地面積(坪数) 私道負担面積 |
物件種目 築年月 |
|---|---|---|---|---|
| 愛媛県宇和島市三間町小沢川 JR予土線二名駅 徒歩45分 |
600万円
|
5DK 134.55m² |
445.73m²( 134坪 )
-m² |
中古戸建 1999/0 |

| 所在地 | 愛媛県宇和島市三間町小沢川 |
||
|---|---|---|---|
| 交 通 | JR予土線二名駅 徒歩45分 | ||
| 価格 | 600万円
|
種別 | 中古戸建 |
| その他維持費等 | その他一時金 | ||
| 建物面積 | 134.55m² | 築年月 | 1999/0 |
|---|---|---|---|
| 建物構造 | 木造 | 階建 | 地上1階 |
| 間取り | 5DK 備考: DK、和室 8 畳 × 4、和室 6 畳 × 1 | ||
| 土地面積 | 445.73m² | 土地坪数 | 134坪 |
| 土地権利 | 所有権 | 私道負担面積 | -m² |
| 地目 | 地勢 | ||
| 都市計画 | 用途地域 | ||
| 建ぺい率 | -% | 容積率 | -% |
| 接道状況 | : | ||
| セットバック | 国土法届出 | - | |
| 駐車場 | 空有 2台 | ||
| 設備・条件 | 里山が望める 倉庫付 日当り良好 CATV プロパンガス 公営水道 排水浄化槽 トイレ:水洗 駐車場有 | ||
| 引渡/入居時期 | 相談 | 現況 | 空家 |
| 特記事項 | 土砂災害警戒区域(急傾斜地)/ 庭の一部:土砂災害特別警戒区域(急傾斜地) 進入路の一部が赤道(里道)のため、再建築等は事前に確認が必要です。 |
||
| 周辺環境 | コンビニまで約3800m スーパーまで約3400m 町の中心まで約2400m 宇和島市役所(三間支所) 市役所・役場まで約2400m 市立宇和島病院 まで約13800m 三間郵便局 まで約2500m | ||
| 備考 | ・土地、建物の面積は参考程度にお考えください。 ・インターネット環境は地区によって異なりますので、気になる方はおたずねください。 ・登録部分とは別に、周辺の畑1943平方メートル(588坪)も含んだ金額です。 ・お風呂は薪風呂です。 |
||
| 物件番号 | 13806-0124 | 取引態様 | 空き家バンク 状態:売出中 |
※物件掲載内容と現況に相違がある場合は現況を優先と致します。
最終更新日:2025-03-29 次回更新予定日:2025-06-29
最終更新日:2025-03-29 次回更新予定日:2025-06-29
| ◆この物件に関するお問い合わせ | |||
◇ |
![]() | ![]() | |
| ◇ 宇和島市曙町1 | |||
| ◇ e-mail: iju@city.uwajima.lg.jp | |||
電話でのお問い合わせは 0895-24-1111 (内線2571.2510) ※空き家バンクの担当をお呼び頂き、『ビギンズ』を見たとお伝え下さい。 | |||
宇和島市の空き家バンク登録物件をご紹介し、見学希望者には現地での案内を行います。 | |||
スポンサーリンク


















